Не нашли что искали? Спросите у нас! Имеем архивы на 140 ТБ. У нас есть все современные проекты повторного применения и проекты ремонта советских типовых зданий. Пишите нам: info@proekt.sx
Вам не нужен весь проект? Сможем продать отдельную его часть (раздел или подраздел). Напишите нам! Для связи: info@proekt.sx
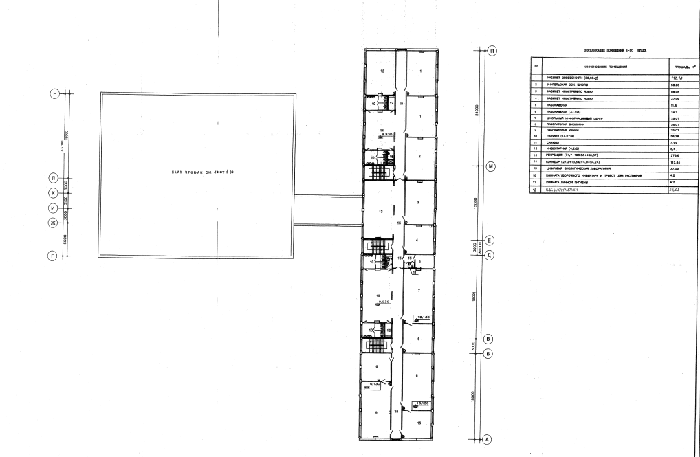
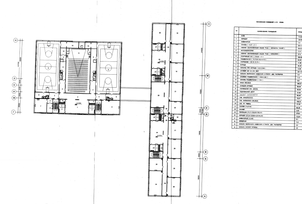
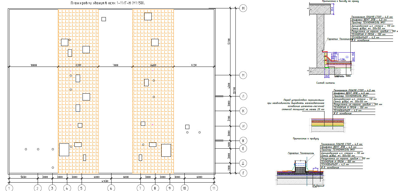
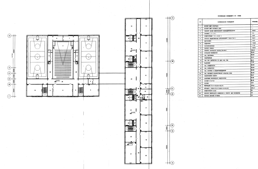
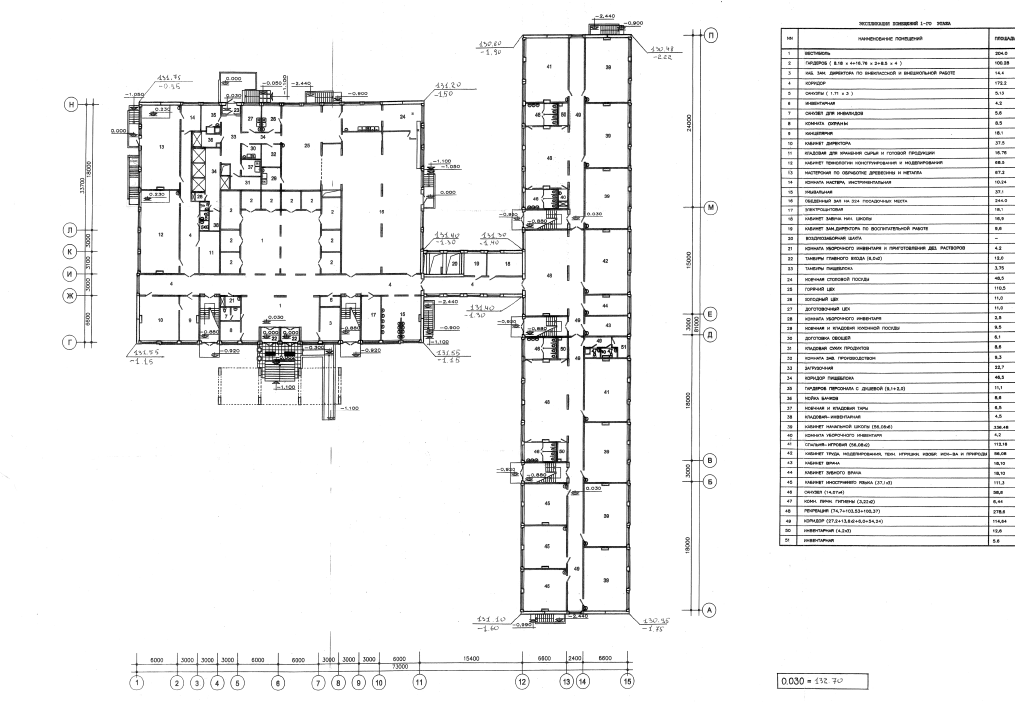
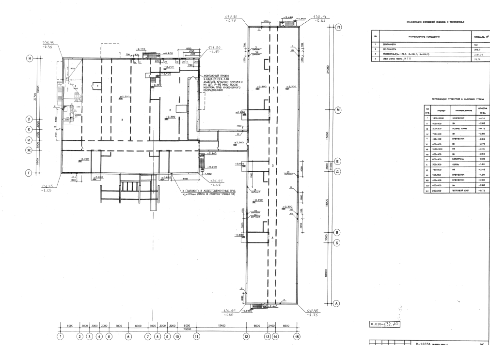
Школа типовой проект V-79
Общие сведения.
Здание школы построено по типовому проекту V-79. Конструктивная схема здания (Блок А) – неполный каркас. Пространственная жесткость обеспечивается совместной работой наружных и внутренних несущих стен, поперечных рам из железобетонных колонн и ригелей из железобетона и конструкций перекрытий из сборных железобетонных плит, плит покрытия и фундаментов. Конструктивная схема здания (Блоки Б, В) – бескаркасная. Несущие стены наружные и внутренние выполнены из панелей. Вдоль внутренних стен расположены ригеля для опирания плит покрытия. Пространственная жесткость обеспечивается совместной работой стен, ригелей, плит покрытия и фундаментов.

