Не нашли что искали? Спросите у нас! Имеем архивы на 140 ТБ. У нас есть все современные проекты повторного применения и проекты ремонта советских типовых зданий. Пишите нам: info@proekt.sx
Вам не нужен весь проект? Сможем продать отдельную его часть (раздел или подраздел). Напишите нам! Для связи: info@proekt.sx
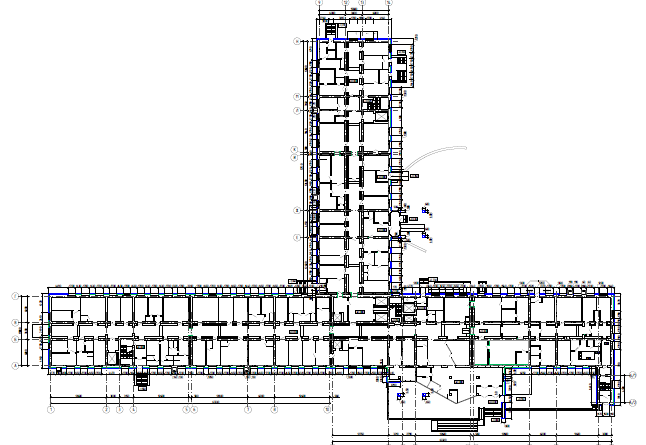
Типовой проект 254-1-22
Типовой проект 254-1-22 Районная больница на 400 коек с поликлиникой на 600 посещений в день.
Технико-экономические показатели.
Здание 5-ти этажное с подвалом и чердаком, 1989 года постройки, общая площадь – 19550 м2.
Высота здания 23,35 м.
Строительный объем 67326,0 м3
Мощность 295 коек.
Общие сведения.
Здание больницы отдельно стоящее, пятиэтажное с подвалом и чердаком, построено по типовому проекту 254-1-22. В здании выходы расположены по периметру и с внутренних лестниц. Доступ на этажи здания осуществляется по внутренним лестницам и лифтам. Здание больницы «Т» образной формы с габаритными размерами 126,18*73,32 м, общая площадь 16752,2 м2, строительный объём 67326,0 м3, количество этажей 7, высота здания 23,35м, высота этажа 3,3 м. Год постройки 1989. Фасад силикатный кирпич. Фундамент сборный железобетонный, ленточный. Перекрытия из сборных железобетонных плит. Кровля плоская из гидроизоляционных рулонных материалов.

