Не нашли что искали? Спросите у нас! Имеем архивы на 140 ТБ. У нас есть все современные проекты повторного применения и проекты ремонта советских типовых зданий. Пишите нам: info@proekt.sx
Вам не нужен весь проект? Сможем продать отдельную его часть (раздел или подраздел). Напишите нам! Для связи: info@proekt.sx
Типовой проект 2Мг-05-4
Капитальный ремонт здания терапевтического корпуса типовой проект 2МГ-05-4.
Терапевтический корпус на 360 коек для расширения больниц
Технико-экономические показатели.
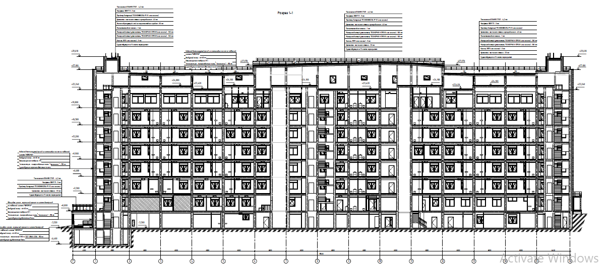
Здание существующее – семиэтажное (с подвалом и техническим чердаком), простой формы в плане.
Размеры здания в осях «А-Д»/«1-16» - 21,000×90,800 м соответственно. Высота здания – 27,2 м. Высота
этажа – 3,3 м. Здание построено в 1972 г. по типовому проекту 2МГ-05-4 из крупных стеновых блоков с
поперечными несущими стенами. Кровля здания плоская, рулонная. По периметру наружных стен
выполнен парапет. На кровле выполнены уклоны для водостока за счет перепада высот конструкций
покрытия. Водоотвод - внутренний, организованный.
Общие сведения.
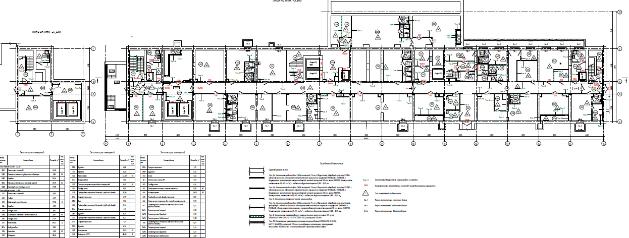
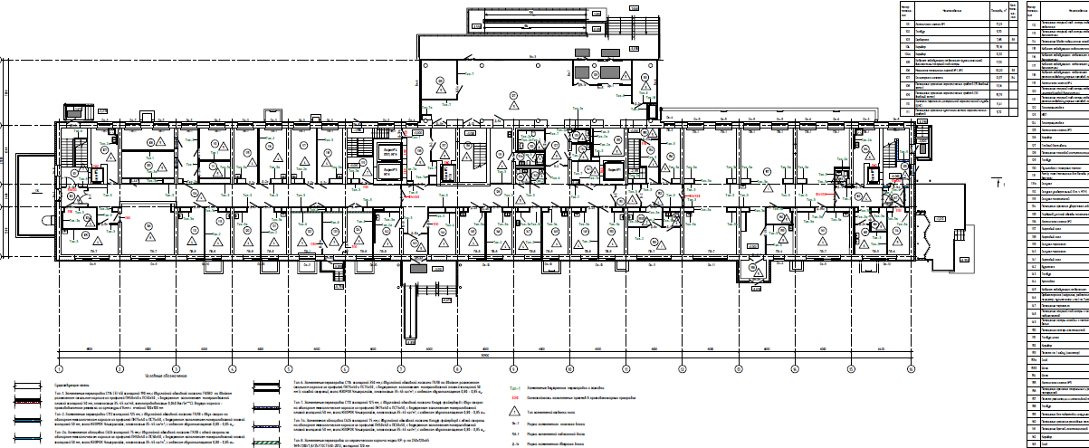
Конструктивная схема здания – каркасно-стеновая. Пространственная жесткость каркаса здания обеспечивается совместной работой продольных и поперечных стен и дисков перекрытий, покрытия и стен лестничных клеток. Наружные стены выполнены из керамзитобетонных укрупненных блоков, толщиной 500 мм. Внутренние стены выполнены из сборных керамзитобетонных блоков, толщиной 400 мм и кладки кирпича керамического, толщиной 380 мм, стены выходов на кровлю выполнены из сборных керамзитобетонные блоков, толщиной 400 мм. Конструкция перекрытия – сборные ж/б балки и сборные железобетонные плиты перекрытия серийного производства. Лестничные марши - крупноразмерные сборные железобетонные. В рамках капитального ремонта объемно-планировочные решения и функциональное назначение помещений не изменяется. Технико-экономические показатели здания соответствует существующим. Изменение функциональной пожарной опасности, степени огнестойкости и класса конструктивной пожарной опасности здания – не предусматривается. Степень огнестойкости, класс конструктивной пожарной опасности, существующая высота здания (23,15 м), а также площадь этажа в пределах пожарного отсека (не более 1 413,2 м2) соответствуют требованиям ч. 4 ст. 4 123-ФЗ в части исполнения требований пожарной безопасности, действовавших до дня вступления в силу положений 123-ФЗ. Подвал состоит из 2-х уровней. Нижний уровень расположен в осях 1-3/А-Г на отм. -6.400. Там размещены помещения уборочного инвентаря, временного хранения трупов, лифтовый холл, выход в подземный переход, ведущий к корпусу и ССК. Верхний уровень подвала расположен на отм.-3.300 и занимает весь этаж здания, там размещены помещения хранения, санитарные комнаты, гардеробы и раздевалки персонала с санузлами и душевыми, аппаратная и кроссовая, ИТП, венткамеры и инженерные помещения, комнаты персонала, санпропускник, лифтовые холлы, выход в подземный переход, ведущий в корпус №12 и пищеблок, выход в подземный переход к бомбоубежищу.

