Не нашли что искали? Спросите у нас! Имеем архивы на 140 ТБ. У нас есть все современные проекты повторного применения и проекты ремонта советских типовых зданий. Пишите нам: info@proekt.sx
Вам не нужен весь проект? Сможем продать отдельную его часть (раздел или подраздел). Напишите нам! Для связи: info@proekt.sx
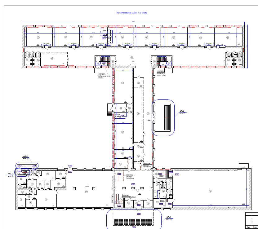
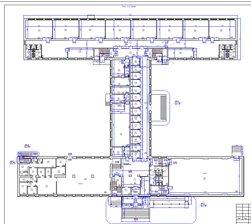
Школа типовой проект 2С-02-23/67
Типовой проект 2с-02-23/67 - универсальное здание общеобразовательной школы на 32 класса - 1280-1320 ученических мест.
Технико-экономические, прочие показатели.
Класс функциональной пожарной опасности: 4.1
Класс конструктивной пожарной опасности: С0
Класс пожарной опасности строительных конструкций: К0
Степень огнестойкости зданий (сооружений): II
Количество этажей выше отм. 0.000: 2, 4
Количество этажей ниже отм. 0.000: 0, 1
Строительный объем: 27828.0 м3
в том числе строительный объем ниже отм.0.000: 5289.2 м3
Площадь застройки: 2452.7 м2
Общая площадь здания: 6308.2 м2
Мощность: 676 учащихся
Общие сведения.
Здание школы возведено по типовому проекту 2С-02-23/67. Фундамент — свайный, объединенный монолитным железобетонным ростверком. Наружные и внутренние стены выполнены из кирпича толщиной 640 мм и 380 мм соответственно. Внутренние перегородки кирпичные толщиной 120 мм, Перекрытие и покрытие выполнено из сборных многопустотных железобетонных плит. Крыша здания совмещенная бесчердачная, с покрытием из рулонных материалов. Основные лестницы выполнены из сборных железобетонных маршей. Пространственная жесткость здания обеспечивается за счет внутренних и наружных несущих и самонесущих кирпичных стен. Металлические перемычки допускается изготавливать на строительной площадке.

