Не нашли что искали? Спросите у нас! Имеем архивы на 140 ТБ. У нас есть все современные проекты повторного применения и проекты ремонта советских типовых зданий. Пишите нам: info@proekt.sx
Вам не нужен весь проект? Сможем продать отдельную его часть (раздел или подраздел). Напишите нам! Для связи: info@proekt.sx
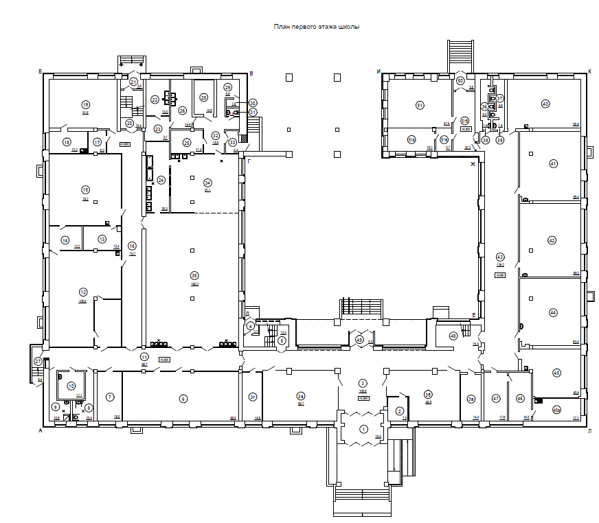
Школа типовой проект 224-1-194
Технико-экономические показатели.
Общая площадь здания – 7256,5 м2.
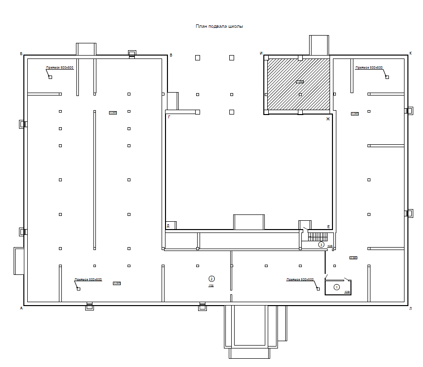
Технический подвал — 1756,2 м2.
Площадь первого этажа – 2328,7 м2.
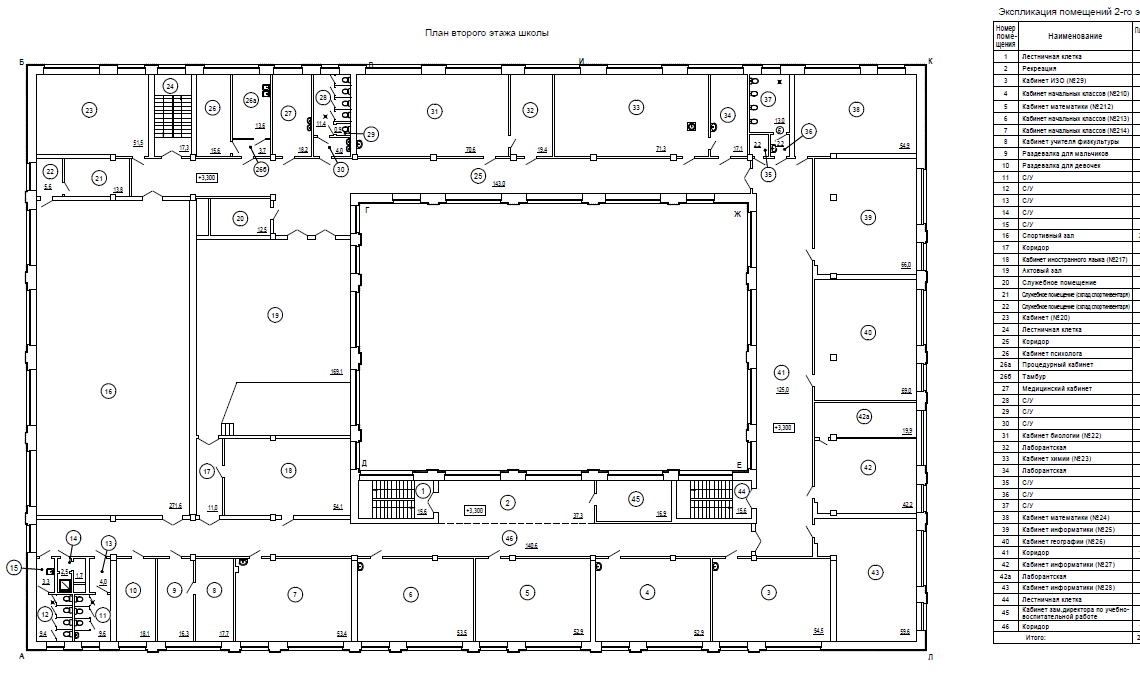
Площадь второго этажа – 2475,0 м2.
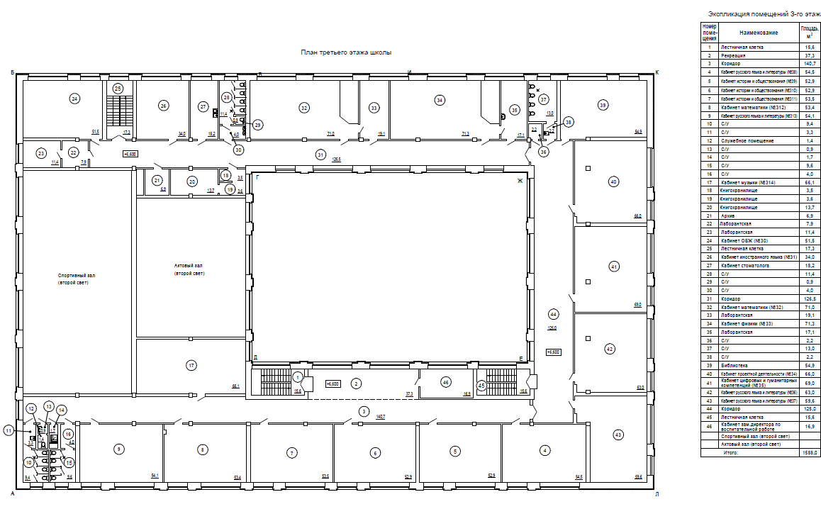
Площадь третьего этажа – 2475,0 м2.
Высота помещений школы (от пола до низа плит перекрытия) — 3 м.
Два помещения (спортзал и актовый зал) имеют высоту на два этажа — 6,5 м
Строительный объем - 24072,0 м3
Общие сведения.
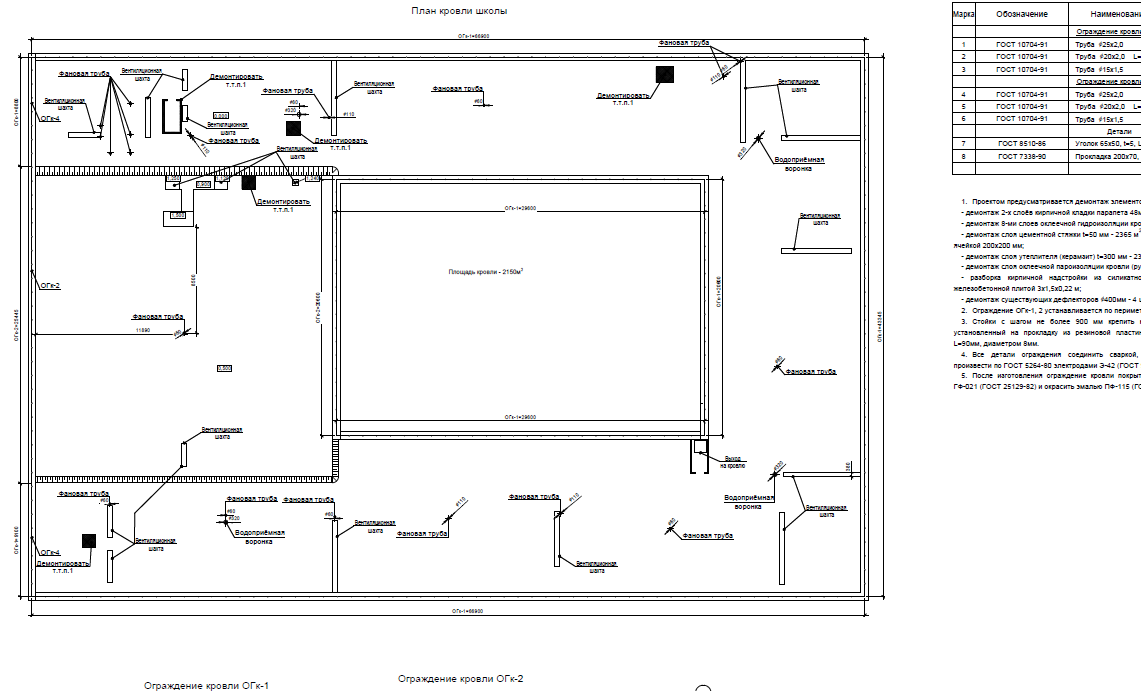
Здание школы построено по типовому проекту 224-1-194, в плане прямоугольное, размеры по внешним габаритам 43,75х67,28 м с внутренним двором размером 20,25х29,22 м. Высота помещений школы (от пола до низа плит перекрытия) — 3 м. Два помещения (спортзал и актовый зал) имеют высоту на два этажа — 6,5 м. Каркас здания школы состоит из продольных и поперечных наружных несущих кирпичных стен (в зависимости от расположения в плане), внутренних ж/б колонн сечением 400х400 мм с ж/б ригелями (между колоннами и наружными кирпичными стенами), а также перекрытий из многопустотных плит (ПК). Помещения спортзала и актового зала перекрыты ребристыми ж/б плитами. Наружные стены здания после реконструкции - трехслойная конструкция, состоящая из силикатного полуторного кирпича (ГОСТ 379-2015) толщиной 640 мм на цементно-песчаном растворе (ГОСТ 28013-98), утеплителя из каменной ваты ТЕХНОФАС ОПТИМА (СТО 72746455- 2018) толщиной 100 мм и тонкослойной декоративной штукатурки ТЕХНОНИКОЛЬ 301 (по типу системы "Сэнарджи"). Кровля школы - выполнена плоской из рулонных материалов (2 слоя покрытия фирмы ТЕХНОНИКОЛЬ) по основанию из 2 слоев ЦСП толщиной 12,5 мм. Утепление кровли выполнено плитами из каменной ваты ТЕХНОРУФ Н ПРОФ (СТО 72745455-3.2.6-2018) толщиной 200 мм, разуклонка к водосточным воронкам выполняется дополнительными слоями утеплителя 30...400 мм. Перед укладкой утеплителя по верху ребристых плит (спортзал и актовый зал) и многопустотных плит (ПК) перекрытия 3 этажа выполняется пароизоляция из 1 слоя Технобарьера. Все материалы по утеплению и устройству кровли выпускаются фирмой ТЕХНОНИКОЛЬ (кроме ЦСП). Существующая организация водостока с кровли — внутренняя с выводом осадков наружу через наружные стены подвала на отмостку.

