Не нашли что искали? Спросите у нас! Имеем архивы на 140 ТБ. У нас есть все современные проекты повторного применения и проекты ремонта советских типовых зданий. Пишите нам: info@proekt.sx
Вам не нужен весь проект? Сможем продать отдельную его часть (раздел или подраздел). Напишите нам! Для связи: info@proekt.sx
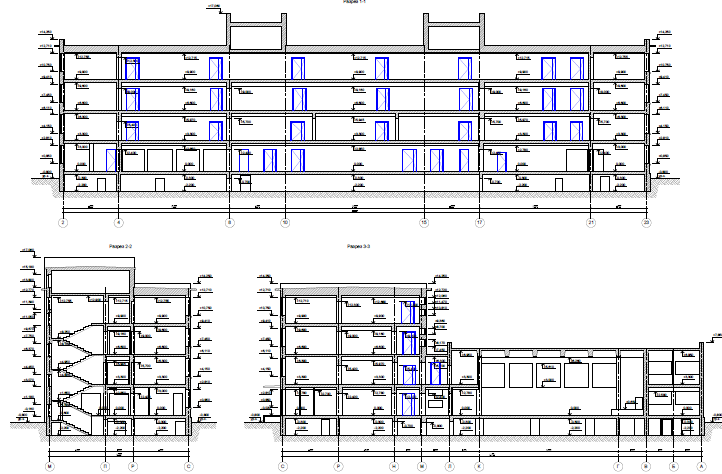
Школа. Типовой проект 2Лг-02-2
Проектная, рабочая документация, включая сметы на комплексный капитальный ремонт здания школы типовой проект 2ЛГ-02-2
Технико-экономические показатели.
Этажность, эт.: 2-4
Год постройки, год: 1965
Общая площадь объекта, м2: 4265,7
Высота 2-х этажной части, м: 7,6
Высота 4-х этажной части, м: 14,5
Общие сведения.
Здание школы построено по типовому проекту 2Лг-02-2, в плане состоит из трех объемов - основного четырехэтажного и примыкающих к нему двух двухэтажных. Высота двухэтажных объемов 7,6 м, высота основного четырехэтажного объема объема 14,5 м. Все 3 объема здания имеют подвал. Высота подвала - 2,1 м; высота этажа (1-4 этажи) - 3 м (от отметки чистого пола до потолка). За отметку 0.000 принят уровень чистого пола первого этажа здания. Общая площадь 4265,7 м2, основное строение - 972,0 м2, боковые строения - 759,3 м2, подвал- 1731,3 м2. Наружные стены здания выполнены из силикатного кирпича, простенки и перемычки над окнами бетонные, часть оконных проемов заложена газобетонными блоками или кирпичом и оштукатурена, материал облицовки цоколя -натуральный камень (путиловская плита). Кровля плоская с парапетным ограждением в торцевых частях здания, покрытие кровли - рулонный гидроизоляционный ковер, покрытие парапетов - металл. На фасаде здания размещены металлические пожарные лестницы. Кирпичное парапетное ограждение кровли имеется тольков торцевых частях здания. Существующие оконные блоки ПВХ белого цвета с двойным стеклопакетом. Существующие входные дверные блоки - металлические, глухие, серого и коричневого цветов. На фасадах здания имеются вентиляционные проемы.

