Не нашли что искали? Спросите у нас! Имеем архивы на 140 ТБ. У нас есть все современные проекты повторного применения и проекты ремонта советских типовых зданий. Пишите нам: info@proekt.sx
Вам не нужен весь проект? Сможем продать отдельную его часть (раздел или подраздел). Напишите нам! Для связи: info@proekt.sx
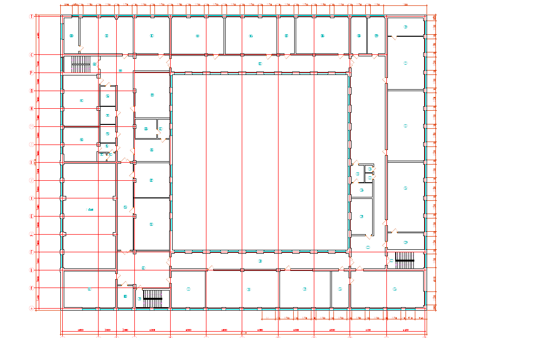
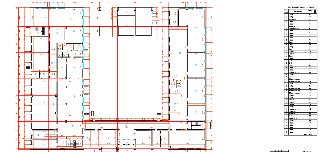
Школа типовой проект
Технико-экономические показатели.
Площадь застройки: 2261,5 м2
Строительный объем здания: 22095 м3
Общая площадь здания: 5011,5 м2
Этажность: 2 эт.
Количество этажей: 3 эт.
Общие сведения.
Технические характеристики здания школы: Степень огнестойкости - II; Уровень ответственности - нормальный; Класс долговечности - II; Класс конструктивной пожарной опасности - С0; Класс функциональной пожарной опасности - Ф4.1. Конструктивная схема здания жесткая, железобетонный каркас комбинированный со стеновой. Наружные стены — силикатный кирпич. Объемно-пространственное решение взаимосвязано с применением в данном проекте железобетонного каркаса. Планировочная структура вписана в заданные. Габариты с учетом требований действующих строительных норм и правил. Площади и набор помещений согласованы в соответствии с требованиями заказчика. Проект учитывает градостроительные и природные факторы, влияющие на планировочную структуру зданий и их объемно-пространственное решение, а также условия по инсоляции проектируемого и существующих зданий.

