Не нашли что искали? Спросите у нас! Имеем архивы на 140 ТБ. У нас есть все современные проекты повторного применения и проекты ремонта советских типовых зданий. Пишите нам: info@proekt.sx
Вам не нужен весь проект? Сможем продать отдельную его часть (раздел или подраздел). Напишите нам! Для связи: info@proekt.sx
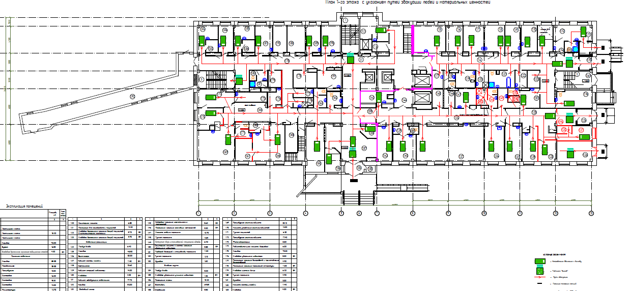
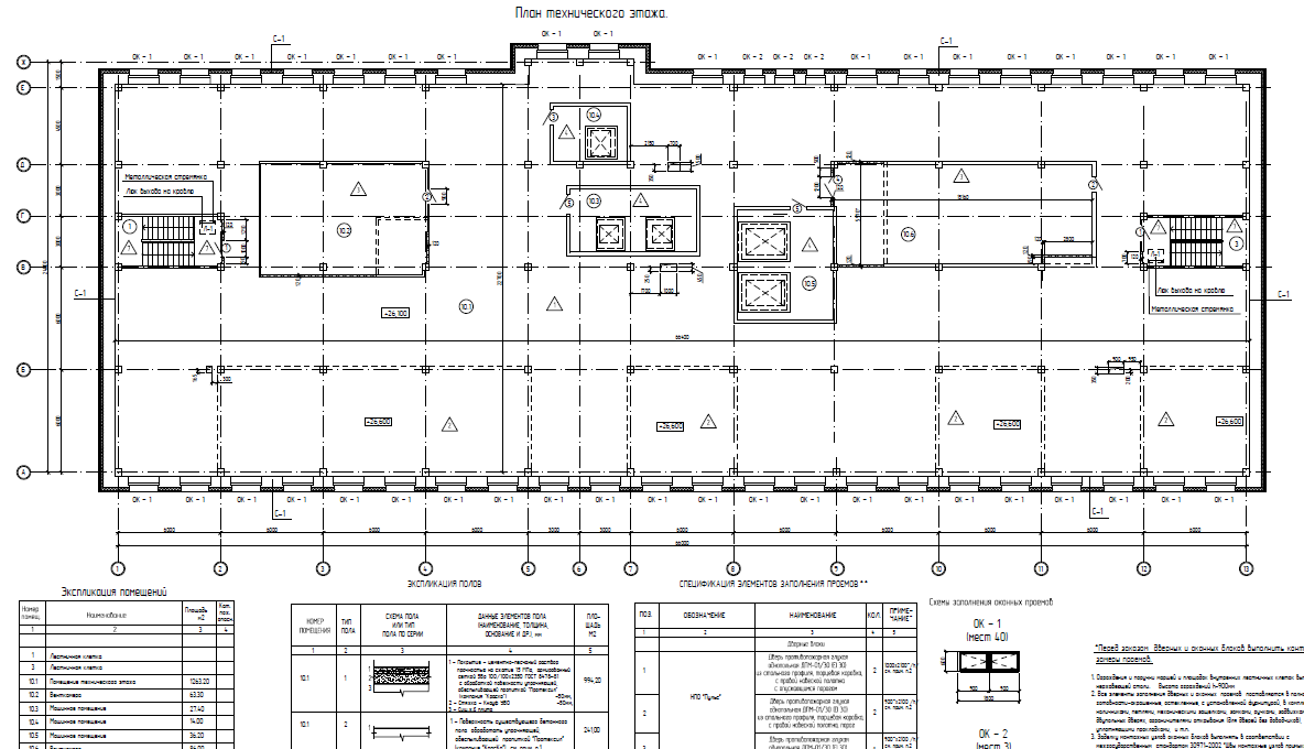
Типовой проект 252-1-43
Технико-экономические показатели.
Прямоугольной формы, габариты здания в осях – 24,0х66,0 м.
Общая площадь здания – 12461,2 м2;
Объем здания существующий – 49838,0 м3;
Количество этажей – 10, в т.ч.подвал под частью здания, цокольный и технический этаж.
Высота подвала – до 3,00 м (от уровня пола до перекрытия).
Высота этажей – 3,00 м (от уровня пола до перекрытия).
Высота технического этажа – 2,9 м.
Общие сведения.
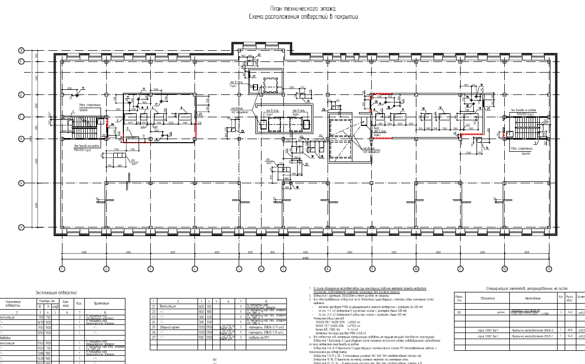
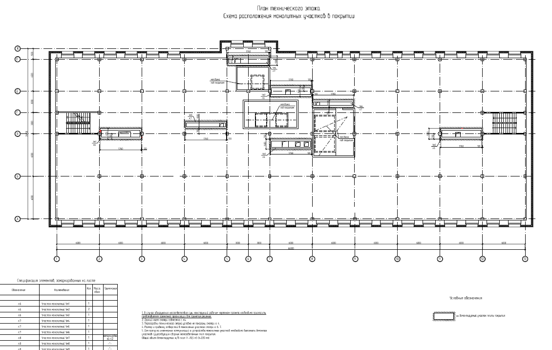
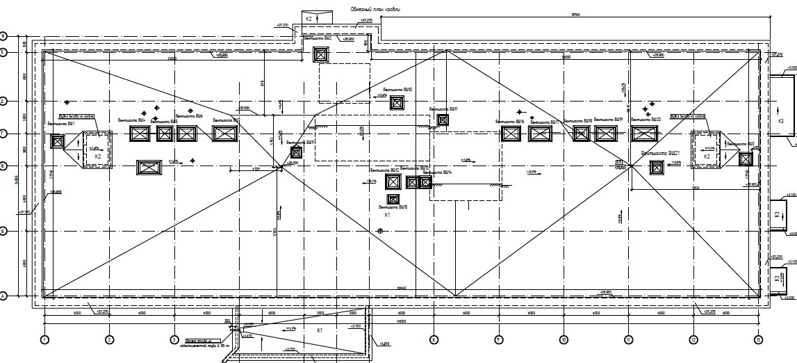
Здание хирургического корпуса представляет собой 10 этажей, в т.ч. цокольный, технический этаж и подвал, выполненное в конструкциях ИИ-04. Год постройки здания - 1988 г. Здание хирургического корпуса запроектировано и построено по типовому проекту серии 252-I-43 «Хирургический корпус на 240 коек. Для сельского строительства». Конструктивная схема здания – каркасное, с поперечным расположением ригелей. Каркас здания – сборный железобетонный (колонны, ригели, диафрагмы жесткости, плиты перекрытия). Перекрытия и покрытие – сборные железобетонные плиты, монолитные участки. Пространственный каркас здания состоит из системы связанных между собой сборных ж.б. колонн, ригелей, диафрагм жесткости и многопустотных плит перекрытия. Каркас здания предусматривает высоту этажа 3,3 м, при модульной сетке колонн 6,0х6,0 м, 6,0х3,0 м. Колонны каркаса – размер сечения 400х400мм, ригели высотой 450мм, плиты перекрытия – пустотные, толщиной 220 мм. Лестницы – сборные железобетонные. Наружных стены – кирпичные, толщиной 640мм, оштукатуренные Внутренние стены – кирпичные, толщиной 380мм, оштукатурены с последующей окраской. Перегородки- гипсолитовые, частично кирпичные. Кровля – плоская, рулонная. Заполнение оконных блоков - ПВХ.

