Не нашли что искали? Спросите у нас! Имеем архивы на 140 ТБ. У нас есть все современные проекты повторного применения и проекты ремонта советских типовых зданий. Пишите нам: info@proekt.sx
Вам не нужен весь проект? Сможем продать отдельную его часть (раздел или подраздел). Напишите нам! Для связи: info@proekt.sx
Поликлиника 252-4-42.84
Типовой проект 252-4-42.84 «Поликлиника на 250 посещений в смену/в конструкциях серии 1.020-1".
Технико-экономические показатели.
Общая площадь помещений, м2: 3828,58
Общая площадь здания, м2: 4188,60
Полезная площадь, м2: 3708,18
Строительный объем общий, м3: 23060,55
в том числе выше отм. 0,000, м3: 18941,15
в том числе ниже отм. 0,000, м3: 4119,40
Этажность, этаж: 3
Количество этажей, этаж: 4
Площадь застройки, м2: 1477,70
Количество посещений в смену, п/см: 250
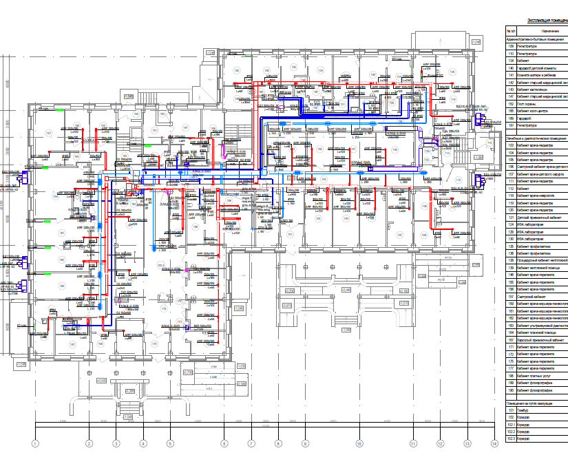
Общие сведения.
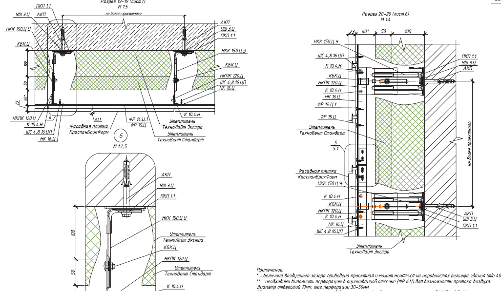
Конструктивная схема здания – каркасная с рамами из колонн и ригелей и диафрагмами жесткости. Общая устойчивость каркаса обеспечивается за счет жесткой заделки колонн в стаканах фундаментов, смонтированных в продольном и поперечном направлениях железобетонных диафрагм жесткости. В каждом направлении установлено по одной диафрагме. Крепление диафрагм к колоннам и между собой осуществляется в двух точках по высоте. Жесткость монтажных узлов обеспечивается путем сварки закладных деталей диафрагм и колонн с помощью пластин или арматурных стержней. Жесткость здания повышена также за счет трех лестничных клеток. Специфика работы элементов каркаса 1.020-1 определяется конструктивным решением основного узла стыка ригеля с колонной, в которой предусмотрено их шарнирное сопряжение. Конструкция перехода - рамная эстакада, по которой выполнена кирпичная кладка стен. Кладка устроена по трем спаренным железобетонным балкам сечением 200 х 500 мм, которые в свою очередь смонтированы по железобетонным колоннам сечением 300 х 300 мм с шагом 6,00 м. В поперечном направлении смонтированы стальные обвязочные балки из спаренных двутавров и швеллеров. Перекрытие и покрытие переходов - сборный железобетонный настил из пустотных плит. Деформационных или температурных осадочных швов не предусмотрено. Вход в здание осуществляется через два главных крыльца в осях 2-6/А и 8-11/В, а также через три эвакуационных выхода, расположенные в осях 3-4/Ж, 4-5/Ж, 13-14/Е. Сообщение между этажами осуществляется по внутренним лестницам, расположенным в осях 3-4/Д-Ж, 12-14/Д-Е, 6-7/Д-Ж (между первым и подвальным этажом). Выход на чердак осуществляется через люк, расположенный в плите перекрытия в осях 3-4/Д-Ж, и через двери лестничной клетки, расположенной в осях 12-14/Д-Е. Высота этажа - 3,30 м.

